COMMUNITY FACILITY
2nd – 6th Floor: 1,409 – 2,519.03 SQ. FT.

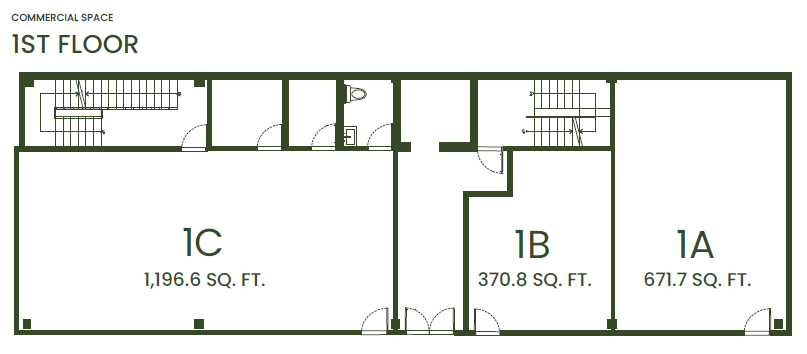
COMMERCIAL SPACE
1st Floor: 370 – 2,800 SQ. FT.

Click on the image for the updated floor plan.